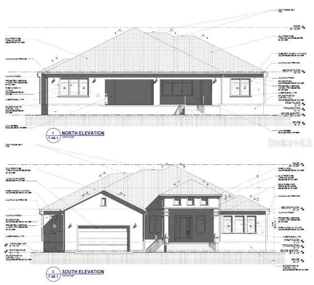
About 4984 Topsail Drive
Under Construction. This project is being sold AS-IS and will need to be completed by the new owner at their expense. Located in the desirable community of Blackburn Estates, this property offers a unique chance to finish what has already been started and create a customized home near some of the most beautiful beaches. Footers and stem walls have already been completed and filled with soil, and the sale also includes active permits, building plans, remaining materials (including a full set of high-end, impact-resistant hurricane-proof windows and doors), as well as the survey, drainage plan, and complete permit set. Buyers will have the option to continue with the current builder or select their own. With multi-million-dollar homes nearby and easy access to the Intracoastal Waterway for kayaking, fishing, or simply enjoying time on the water, this is an excellent opportunity to bring your vision to life in a sought-after location. Opportunities like this in such a high-end location are extremely rare—don’t miss your chance!
Features of 4984 Topsail Drive
MLS® # | A4664596 |
---|---|
Price | $399,000 |
Bedrooms | 4 |
Bathrooms | 5.00 |
Full Baths | 4 |
Half Baths | 1 |
Square Footage | 2,968 |
Acres | 0.26 |
Year Built | 2025 |
Type | Residential |
Sub-Type | Single Family Residence |
Status | Active |
Taxes | $2,707 |
HOA Fees | $345 |
HOA Frequency | Monthly |
CDD | N |
Community Information
Address | 4984 Topsail Drive |
---|---|
Area | Nokomis/North Venice |
Subdivision | BLACKBURN RDG ADD |
City | NOKOMIS |
County | Sarasota |
State | FL |
Zip Code | 34275-1623 |
Amenities
# of Garages | 2 |
---|---|
View | Water |
Is Waterfront | No |
Has Pool | No |
Interior
Interior Features | High Ceilings |
---|---|
Appliances | None |
Heating | Central |
Cooling | Central Air |
Fireplace | Yes |
Fireplaces | Living Room |
Exterior
Exterior Features | Lighting |
---|---|
Roof | Shingle |
Foundation | Slab |
School Information
Elementary | Laurel Nokomis Elementary |
---|---|
Middle | Laurel Nokomis Middle |
High | Venice Senior High |
Rental Restrictions
Minimum Lease | 1 Month |
---|
Additional Information
Date Listed | September 10th, 2025 |
---|---|
Days on Market | 38 |
Zoning | RSF1 |
Foreclosure | No |
Short Sale | No |
RE / Bank Owned | No |
Listing Details
Office | DALTON WADE INC |
---|