806 E 25th Street, SANFORD, FL

$499,000

Previous Next

2,037

Square feet

0.24

Acres

About 806 E 25th Street

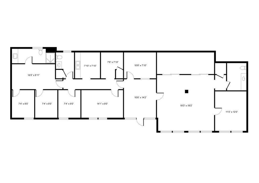
Prime Location & Fully Furnished Office Space! Ideal location for Learning Center or Pre-School as it was previously used as a Tutoring Center. Would also be a great set up for Professional/Medical Services. 2,037 SF Freestanding Concrete Block Building w/Shingle Roof (New 2024). 7 Designated Parking spaces in the front. Building is currently set up with (6) Offices, (1) Large Option Work Area, Reception Area, File/Storage Room (3) Bathrooms, Kitchen, and Open Space. Located 5 minutes from Sanford Airport. Close to Highway 417 and within 10 minutes of Interstate 4. CALL TODAY! All Realtor information is presumed correct but not guaranteed including dimensions, zoning, uses and description. Buyer and buyer's agent to verify all information.

Features of 806 E 25th Street

MLS® # O6265503
Price $499,000
Square Footage 2,037
Acres 0.24
Year Built 1952
Type Commercial Sale
Sub-Type Office
Status Active
Taxes $4,162
CDD N

Community Information

Address 806 E 25th Street
Area Sanford/Lake Forest
Subdivision PHILLIPS TERRACE
City SANFORD
County Seminole
State FL
Zip Code 32771-4548

Amenities

Parking 6 to 12 Spaces
Is Waterfront No
Has Pool No

Interior

Appliances Dishwasher, Microwave
Heating Central
Cooling Central Air
Fireplace No

Exterior

Roof Shingle
Foundation Slab

Additional Information

Date Listed December 18th, 2024
Days on Market 289
Zoning RMOI
Foreclosure No
Short Sale No
RE / Bank Owned No

Listing Details

OfficeDIVERSIFIED REALTY HOLDINGS

Listing Map

Request a Showing

Provide a valid email address.
When would you like to view this property?